

作品包括:
Word版说明书1份,共35页,约14000字
任务书月份
开题报告一份
外文翻译一份
CAD版本图纸,共9张
UG三维图一份

目录
目 录 1
第一章 摘要 1
第二章 概述 2
2.1 我国塑料模具现状及发展趋势 2
2.2 本设计的意义及目的 4
第三章 塑件成型工艺性分析 5
3.1 塑件分析 5
3.1.1 塑件图 5
3.1.2 塑件结构分析 5
3.1.3 成型工艺分析如下 5
3.2 ABS 的注射成型过程及工艺参数 6
3.2.1 注射成型过程 6
3.2.2 ABS 的注射工艺参数 6
3.2.3 ABS 化学和物理特性 7
3.3注塑模工艺条件 7
第四章 拟定模具结构形式 9
4.1 分型面的选择 9
4.1.1 分型面的选择原则 9
4.1.2 分型面的确定 9
4.2 型腔数目的确定 9
第五章 注塑机型号的确定 11
5.1 所需注射量的计算 11
5.2 塑件和流道凝料在分型面上的投影面积及所需锁模力的计算 11
5.3 选择注射机 12
5.4注射机有关参数的校核 13
5.4.1 注射量的校核 13
5.4.2注射型腔压力的校核 13
5.4.3锁模力的校核 14
5.4.4校核模具厚度与注射机闭合高度 14
综上所述,注射机选择XS-ZY-500卧式注塑机符合该模具设计要求。 15
第六章 浇注系统设计 16
6.1 主流道的设计 16
6.1.1 主流道设计要点 16
6.1.2 主流道尺寸 16
6.1.3 主流道衬套的形式 17
6.2分流道的布置形式 17
6.2.1分流道的长度 17
6.2.2 分流道的形状及尺寸 17
6.2.3 分流道的表面粗糙度 17
6.3 浇口的设计 18
6.3.1 浇口类型及位置的确定 18
6.3.2 浇口结构尺寸的经验计算 19
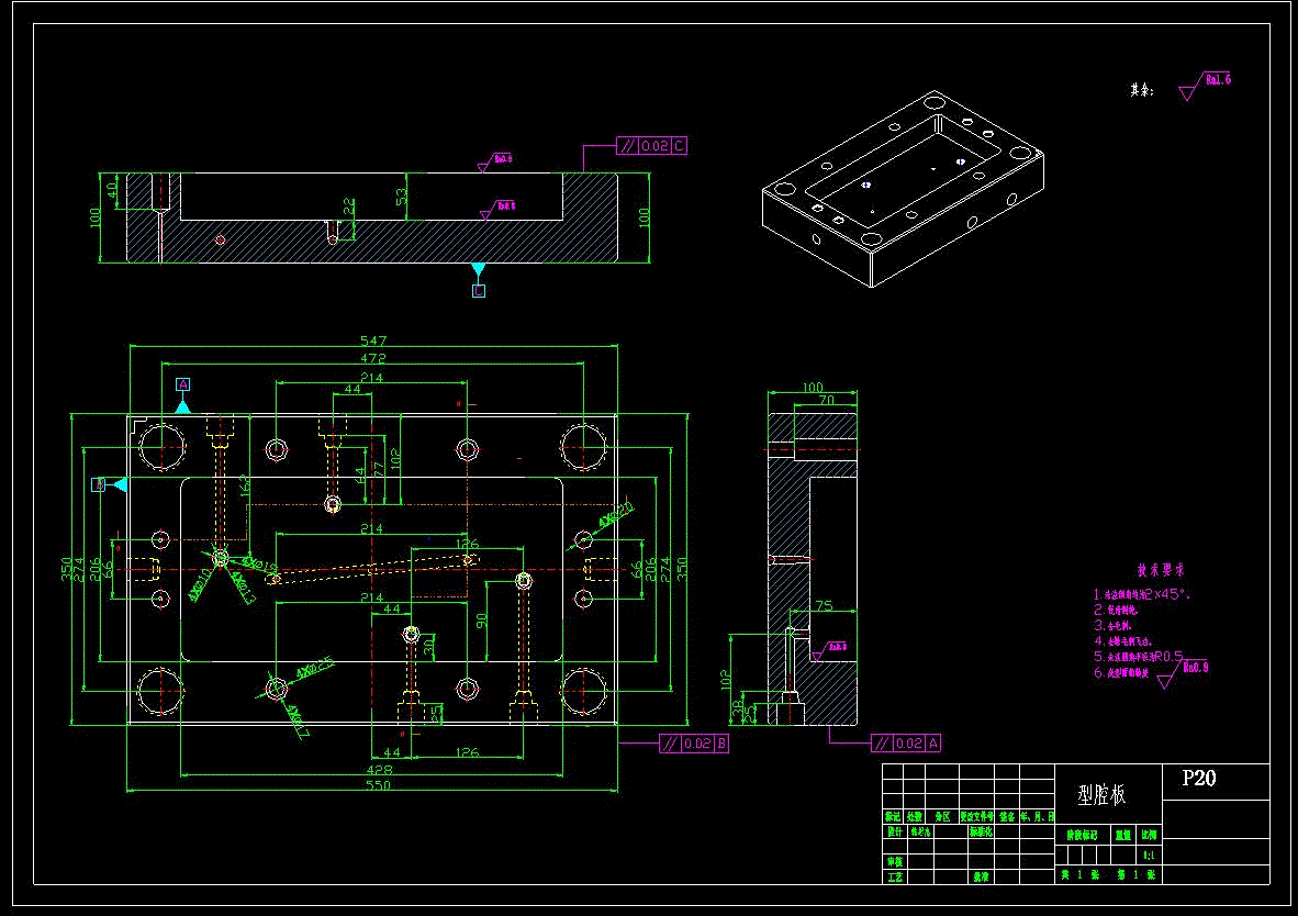
第七章 成型零件的结构设计和计算 20
7.1 成型零件的结构设计 20
7.2 成型零件工作尺寸的计算 21
7.2.1 型腔尺寸 21
7.2.2 型芯尺寸 22
第八章 模架的确定和标准件的选用 23
第九章 脱模推出机构的设计 24
9.1 推出机构的设计原则: 24
9.2 脱模机构的结构设计 24
第十章 排气系统的设定 25
第十一章 温度调节系统设计 26
第十二章 制定模具零件加工工艺 28
12.1动模板加工工艺过程 28
12.2定模板加工工艺过程 28
第十三章 总装图 30
第十四章 设计小结 31
参考文献 32
致 谢 33
温馨提示:
1、题目前面的备注【字母数字编号】为本站整理分类的编号,与课题内容无关,请选题时忽视;
2、若题目上备注三维,则表示文件里包含三维源文件,由于三维组成零件数量较多,为保证预览截图的简洁性,本站将三维文件夹进行了打包。三维及CAD预览截图,均为本站电脑打开软件进行截图的,保证能够打开,下载原件超高清,下载后解压即可;
3、本站所有资源如无特殊说明,都需要本地电脑安装Office2007。图纸软件为AutoCAD,PROE,UG,SolidWorks,CATIA等;
4、本站所有图文资料仅供用户学习参考,不作为任何商用或其他用途;
5、本站不保证下载资源的准确性、安全性和完整性, 不包修改,不支持退换,同时也不承担用户因使用这些下载资源对自己和他人造成任何形式的伤害或损失;
6、 下载文件中如有侵权或不适当内容,请与我们联系,我们立即纠正。