

作品包括:
Word版设计说明书1份
CAD版本图纸,共10张
摘要
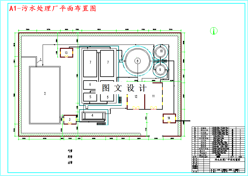
本设计的主要任务是麻涌镇污水处理厂的设计,设计规模为50000m3/d,采用了A2O处理工艺。污水处理工艺为厌氧—缺氧—好氧工艺,污泥处理工艺为污泥浓缩脱水工艺。该污水厂的污水处理流程为:从泵房到沉砂池,然后经过初沉池进入A20生物处理池,二沉池,最后出水;污泥的流程为:从二沉池排出的剩余污泥首先进入浓缩池,进行污泥浓缩,然后进入贮泥池,经过浓缩的污泥再送至带式压滤机,进一步脱水后,运至垃圾填埋场。本工艺的技术关键之一是合理确定进水分配系数a和b,而a和b是根据进水水质和出水水质确定的,如果a过少,则C/N过低,影响反硝化效果;如果a过大,则b过少,使C/P过低,影响除磷效果。因此,可根据实际进水水质调节a和b,以实现除磷的最佳效果。设计结果表明:污水处理厂处理后的出水达到《广东省地方标准—水污染物排放限值》(DB44/26-2001)中的一级标准。
温馨提示:
1、题目前面的备注【字母数字编号】为本站整理分类的编号,与课题内容无关,请选题时忽视;
2、若题目上备注三维,则表示文件里包含三维源文件,由于三维组成零件数量较多,为保证预览截图的简洁性,本站将三维文件夹进行了打包。三维及CAD预览截图,均为本站电脑打开软件进行截图的,保证能够打开,下载原件超高清,下载后解压即可;
3、本站所有资源如无特殊说明,都需要本地电脑安装Office2007。图纸软件为AutoCAD,PROE,UG,SolidWorks,CATIA等;
4、本站所有图文资料仅供用户学习参考,不作为任何商用或其他用途;
5、本站不保证下载资源的准确性、安全性和完整性, 不包修改,不支持退换,同时也不承担用户因使用这些下载资源对自己和他人造成任何形式的伤害或损失;
6、 下载文件中如有侵权或不适当内容,请与我们联系,我们立即纠正。