欢迎来到龙图网在线图文分享平台-CAD图纸,设计说明书,工业设计3D模型,三维软件下载!   客服QQ:2363701252
热搜:

工艺夹具 模具设计 数控编程 土木工程 3D模型

B026-J23-100开式双柱可倾曲柄压力机设计 下载积分:50 资料编号: B026

1.打开支付宝或者微信扫描二维码。
2.填写金额:50 
3.添加备注,填写资料编号:
资料编号: B026
4.支付成功后,请发资料编号到邮箱:jxsj168@qq.com
会有专人在15分钟内把资料发到您邮箱
备注:如果付款忘记填写资料编号,则发邮件时附带您的交易明细截图即可。
请耐心等待,如超过30分钟还没收到,请联系客服QQ:2363701252
点击分享:

作品描述

作品包括:

说明书一份,72页,月22000字

CAD版本图纸共7张

摘   要


   曲柄压力机是通过曲柄滑块机构将电动机的旋转运动转换为滑块的直线往复运动,对胚料进行成行加工的锻压机械。曲柄压力机动作平稳,工作可靠,广泛用于冲压、挤压、模锻和粉末冶金等工艺。其结构简单,操作方便,性能可靠。

关键词:压力机,曲柄机构,机械制造

目     录



一第一章  设计任务书 1

第一节  曲柄压力机设计的目的 1

第二节  曲柄压力机设计的内容 1

第三节  曲柄压力机设计设计步骤 1

第二章 电动机选择和飞轮设计 2

第一节  压力机电力拖动特点 2

第二节  电动机的选择 3

第三节  飞轮转动惯量及尺寸的计算 5

第三章  机械传动设计 10

第一节  传动系统分析 10

第二节  V带传动设计 11

第三节  齿轮传动设计 13

第四节  转轴设计 16

第五节  平键连接 19

第六节  滚动轴承的选择 20

第四章  曲柄滑块机构 22

第一节  曲柄滑块机构的运动和受力分析 22

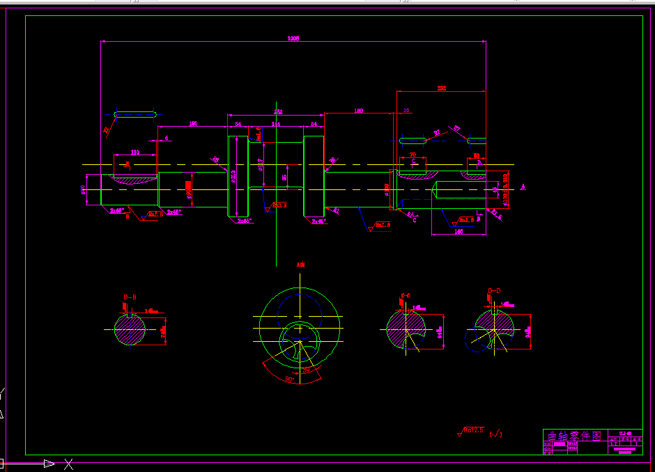
第二节  曲柄轴的设计计算 23

第三节  连杆和封闭高度调节装置 26

第四节  滑动轴承的设计 30

第五节  滑块与导轨的形式 32

第五章  机身设计 33

第一节  机身结构 33

第二节  机身计算 34

第六章 离合器与制动器 38

第一节  离合器与制动器的作用原理 38

第二节  离合器的选用 39

第三节  制动器的选用 41

第七章  过载保护装置 42

第八章  润滑系统 48

外文资料 51

中文翻译 58

总  结 63

参考文献 64

温馨提示:

1、题目前面的备注【字母数字编号】为本站整理分类的编号,与课题内容无关,请选题时忽视;

2、若题目上备注三维,则表示文件里包含三维源文件,由于三维组成零件数量较多,为保证预览截图的简洁性,本站将三维文件夹进行了打包。三维及CAD预览截图,均为本站电脑打开软件进行截图的,保证能够打开,下载原件超高清,下载后解压即可;

3、本站所有资源如无特殊说明,都需要本地电脑安装Office2007。图纸软件为AutoCAD,PROE,UG,SolidWorks,CATIA等;

4、本站所有图文资料仅供用户学习参考,不作为任何商用或其他用途;
5、本站不保证下载资源的准确性、安全性和完整性, 不包修改,不支持退换,同时也不承担用户因使用这些下载资源对自己和他人造成任何形式的伤害或损失;

6、 下载文件中如有侵权或不适当内容,请与我们联系,我们立即纠正。


线