

作品包括:
Word版设计说明书1份
CAD版本图纸,共8张
摘要
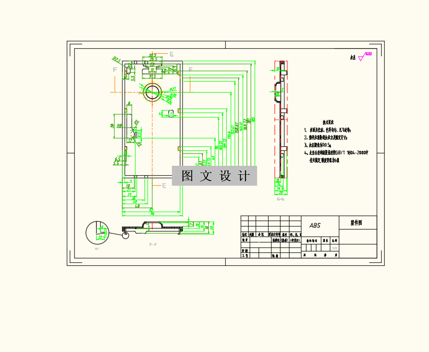
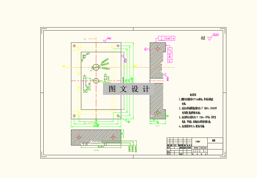
本课题对行车记录仪壳进行了注射成型模拟分析和成型模具设计,本塑件选择的材料为 ABS,它的内部结构有六个倒钩槽,侧面有三个通孔,倒钩槽型芯小,用滑块抽芯比较困难,所以用斜推杆设计,在推板上和推杆一起运动顶出制件。通孔用斜导柱滑块侧向抽芯。本次设计拟定采用一模一腔的型腔分布,推出机构采用推杆推出,型腔型芯结构采用整体嵌入式。然后我们利用软件对行车记录仪壳进行 建模,接着需要对行车记录仪壳进行成型分析。然后在导入到 Moldflow 中对其进行充填、保压、翘曲等一系列分析,再由此来确定本塑件的浇注系统和冷却系统方案,本次采用 FHT80XB 型注射机;完成模具总装结构图。
温馨提示:
1、题目前面的备注【字母数字编号】为本站整理分类的编号,与课题内容无关,请选题时忽视;
2、若题目上备注三维,则表示文件里包含三维源文件,由于三维组成零件数量较多,为保证预览截图的简洁性,本站将三维文件夹进行了打包。三维及CAD预览截图,均为本站电脑打开软件进行截图的,保证能够打开,下载原件超高清,下载后解压即可;
3、本站所有资源如无特殊说明,都需要本地电脑安装Office2007。图纸软件为AutoCAD,PROE,UG,SolidWorks,CATIA等;
4、本站所有图文资料仅供用户学习参考,不作为任何商用或其他用途;
5、本站不保证下载资源的准确性、安全性和完整性, 不包修改,不支持退换,同时也不承担用户因使用这些下载资源对自己和他人造成任何形式的伤害或损失;
6、 下载文件中如有侵权或不适当内容,请与我们联系,我们立即纠正。