

作品包括:
word说明书一份,共41页,约14500字
任务书一份
开题报告一份
外文翻译一份
UG三维版本图纸,一套
摘要
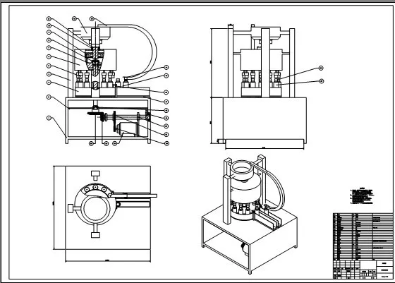
回转式拧瓶盖机适用于带螺纹的盖与瓶的旋盖,市场上现有的回转式拧瓶盖机大多数是半自动的包装机,瓶盖的疏理大多由人工来完成,生产效率不是很高,而且加大了劳动的强度,再生产时有一定的危险,本设计为自动理盖而且是多工位拧盖机。
本文介绍了题目的研究背景和意义,论述了拧盖机在国内外的发展状况,介绍了本次设计研究的内容及方法。本次设计的重点是拧盖机的总体设计方案、过程的拧盖、输送方式和定位方法,在此基础上进行了运动与结构的设计。本次设计采用的拧盖方法是回转式的,是通过圆柱凸轮的轮廓线来实现拧盖头的上下往复运动的,通过锥齿轮传递转矩;而且在满足拧盖机原理的条件下,充分考虑了整机的布局和经济性,不但结构简单明了,操作方便而且本课题的设计实现了从进瓶到出瓶的全部自动化,具有速度可调、定位准确、旋盖可靠、运行平稳、无噪音和不伤瓶盖等优点,克服了传统机构的缺点,总体上达到了我们预期设计的目标。
关键词:拧瓶盖机构;理盖机构;传送;自动化;转盘
目录
摘要 III
Abstract IV
1 绪论 1
1.1 本课题的研究内容和意义 1
1.2 国内外的发展概况 1
1.3 本课题应达到的要求 1
2 总体方案设计 2
2.1 方案一的介绍 2
2.2 方案二的介绍 2
2.3 方案比较 2
2.4 采用方案的详细设计 3
2.4.1 上盖装置的设计 3
2.4.2 传送带的设计 4
2.4.3 底座箱的设计 4
2.4.4 拧盖机构的设计 4
2.4.5 转盘的设计 5
3 总装图的确定 6
3.1 主要技术参数的确定 6
3.1.1 电机的选择 6
3.2 传动方案的确定 7
3.3 结构方案的确定 7
4 部件装配图的确定 9
4.1 带传动的计算 9
4.2 轴的设计计算和校核 11
4.2.1 轴的结构设计及选材 11
4.2.2 轴的设计计算 11
4.2.3 轴的校核计算 12
4.3 齿轮的计算和校核 12
4.3.1 齿轮材料处理工艺及制造工艺的选定 12
4.3.2 确定各主要参数 13
4.3.3 传动比 13
4.3.4 齿轮模数m 13
4.3.5 齿轮接触疲劳强度计算 13
4.3.6 齿轮强度校核 14
4.4 锥齿轮的计算和校核 19
4.4.1 选取齿轮类型,精度等级,材料及齿数 19
4.4.2 按齿面接触强度设计 19
4.4.3 设计计算 19
4.4.4 按齿根弯曲强度设计 20
4.4.5 设计计算 21
4.4.6 几何尺寸计算 22
4.5 键的计算和校核 23
4.5.1 键的选择计算 23
4.5.2 键的校核 23
4.6 轴承的选择和校核 23
4.6.1 轴承的选择 23
4.6.2 轴承的寿命计算 24
5 拧盖机的工作情况简介 26
5.1 传送及拧盖部分 26
5.2 控制部分 26
6 拧盖机的安装、维护和安全 28
6.1 安装 28
6.2 维护保养 28
6.3安全要求 28
7 结论与展望 29
7.1 结论 29
7.2 不足之处及未来展望 29
致 谢 30
参 考 文 献 31
温馨提示:
1、题目前面的备注【字母数字编号】为本站整理分类的编号,与课题内容无关,请选题时忽视;
2、若题目上备注三维,则表示文件里包含三维源文件,由于三维组成零件数量较多,为保证预览截图的简洁性,本站将三维文件夹进行了打包。三维及CAD预览截图,均为本站电脑打开软件进行截图的,保证能够打开,下载原件超高清,下载后解压即可;
3、本站所有资源如无特殊说明,都需要本地电脑安装Office2007。图纸软件为AutoCAD,PROE,UG,SolidWorks,CATIA等;
4、本站所有图文资料仅供用户学习参考,不作为任何商用或其他用途;
5、本站不保证下载资源的准确性、安全性和完整性, 不包修改,不支持退换,同时也不承担用户因使用这些下载资源对自己和他人造成任何形式的伤害或损失;
6、 下载文件中如有侵权或不适当内容,请与我们联系,我们立即纠正。