

作品包括:
Word版说明书1份,共46页,约20000字
任务书一份
PPT答辩一份
CAD版本图纸,共10张
Proe三维图一套

摘要
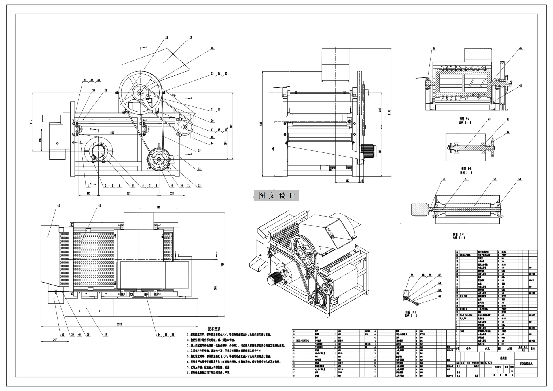
水果要想进入市场售卖,必须按质量对水果进行分级分类,按照不同的质量有不同的价格。水果分选装置能够能够有效的代替人工,进行分选操作,提高分拣的效率和分选的正确率,分选装置的实用性对于中小果农有着重要的意义,他能够降低人工分选的成本,提高经济效益,提高果农的收入,使得果农在市场中有着良好的竞争力。本文就是设计一种对赣南脐橙的一种分选装置,它采用滚筒式的分选方法,能够很好的分选出尺寸不同的赣南脐橙,它的主要组成部件是减速装置,传动装置,机架,电动机,分级用的滚筒等。
本次设计通过查阅参考文献和国内为的新闻报道,对国内外的水果拣选分级装置的发展历程、现状和实现原理有了一个比较全面的了解,最终使用栅条滚筒式的分级机构对水果进行拣选分级;然后,对机构的必要的尺寸参数、力学参数等进行选择和计算。然后对主要的组成零件进行校验和核准,以确保其有良好的使用强度;设计的整个部分都是采用AutoCAD软件绘制分级装置二维的零件图和装配图,使用P/roE三维软件设对零件进行三维空间的建模和并且装配总图。
关键词:脐橙;滚筒式;分级;链传动;设计
目录
摘要I
Abstract II
第1章绪论1
1.1研究背景意义1
1.2国内外分级机械的研究与发展1
1.2.1国外分级机构的发展现状1
1.2.2国内分级机构的发展现状3
1.3水果分级方式现状3
1.3.1分级方式现状3
1.3水果分级装置存在的问题6
第2章总体方案设计7
2.1设计要求7
2.2方案选择7
2.3滚筒式分级装置结构及原理分析7
2.3.1结构构成7
2.3.2工作原理9
2.4总体参数选择9
2.4.1设计参数的确定9
2.4.2生产能力计算10
2.4.3总体尺寸选择10
第3章主要零部件的设计与校核10
3.1动力装置计算与选择11
3.1.1滚筒转速选择11
3.1.2电动机的选择11
3.2动力及传动参数计算12
3.2.1分配传动比12
3.2.2各轴的转速13
3.2.3各轴的输入功率13
3.2.4各轴的输入转矩13
3.2.5整理列表13
3.3减速器设计14
3.3.1高速级齿轮传动14
3.3.2低速级齿轮传动19
3.3.3轴的设计与校核24
3.3.4轴承的选择与校核31
3.3.5键的选择与校核32
3.4链传动的设计32
3.4.1链传动的工作原理32
3.4.2链传动的种类33
3.4.3链传动设计计算34
第4章基于Pro/E的三维设计37
4.1齿轮轴37
4.2齿轮37
4.3轴37
4.4链轮38
4.5滚筒38
4.6三维装配38
总结40
参考文献41
致谢42
温馨提示:
1、题目前面的备注【字母数字编号】为本站整理分类的编号,与课题内容无关,请选题时忽视;
2、若题目上备注三维,则表示文件里包含三维源文件,由于三维组成零件数量较多,为保证预览截图的简洁性,本站将三维文件夹进行了打包。三维及CAD预览截图,均为本站电脑打开软件进行截图的,保证能够打开,下载原件超高清,下载后解压即可;
3、本站所有资源如无特殊说明,都需要本地电脑安装Office2007。图纸软件为AutoCAD,PROE,UG,SolidWorks,CATIA等;
4、本站所有图文资料仅供用户学习参考,不作为任何商用或其他用途;
5、本站不保证下载资源的准确性、安全性和完整性, 不包修改,不支持退换,同时也不承担用户因使用这些下载资源对自己和他人造成任何形式的伤害或损失;
6、 下载文件中如有侵权或不适当内容,请与我们联系,我们立即纠正。