

作品包括:
Word版说明书1份,共30页,约13000字
任务书一份
CAD版本图纸,共10张

摘要
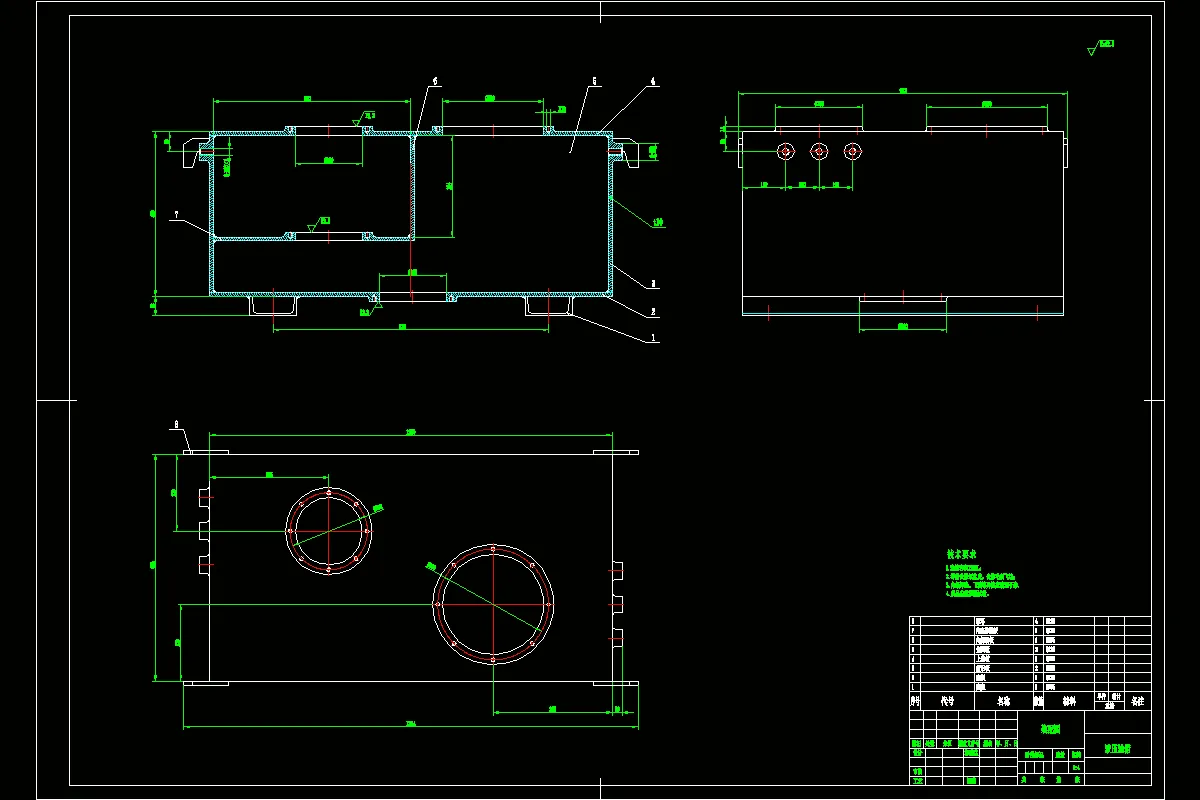
为满足型材的部分成型加工,管端压尖机液压系统的出现使钢管加工更加便捷,600吨管端成型管端压尖机能够对材料端部进行各种成型加工,这样有利于轧钢过程中对钢管进行夹持和搬运,液压系统的活塞行程决定了钢管的顶端加工。液压系统包括液压缸、活塞立柱、液力装置。动力模块:液压油箱、高压泵、伺服系统、电动机构、液压阀、方向调控阀等。压端机通过液压泵的动力将能量传递到材料上,通过对棒料的传输,完成加工工艺的要求。
通过对端部压力机压力系统的设计,分析管件的加工设计方案和整体液压控制装置,通过分析画出液压控制的原理图。经过流体力学的检验计算,选择合适的液压元件实现对液压系统的控制。
本次设计不但复习了所有的机械专业知识,而且加深了对机械系统设计的理解,并且通过此次的设计熟练了计算机辅助设计软件的使用,而且通过对本次机械的设计,也更加熟悉了机械行业的发展前景和未来发展趋势,并且提升了对机械领域的研究热情。
关键词:钢管型材;液压压尖机;液压元件;压力系统
目录
摘要I
Abstract II
第1章绪论1
1.1研究背景及意义1
1.2管端压尖机概述1
1.2.1管端压尖机发展的概况1
1.2.2管端压尖机工作原理2
1.3液压传动的优缺点3
第2章总体方案设计4
2.1设计要求4
2.1.1基本要求4
2.1.2工艺参数4
2.1.3工作循环4
2.2管端压尖机工作原理分析4
2.3管端压尖机工况分析5
2.3.1工作循环分析5
2.3.2负载分析5
2.4液压系统方案设计及拟定液压系统图6
2.4.1制定液压系统方案6
2.4.2拟定液压系统图7
2.4.3液压缸的工作压力的确定7
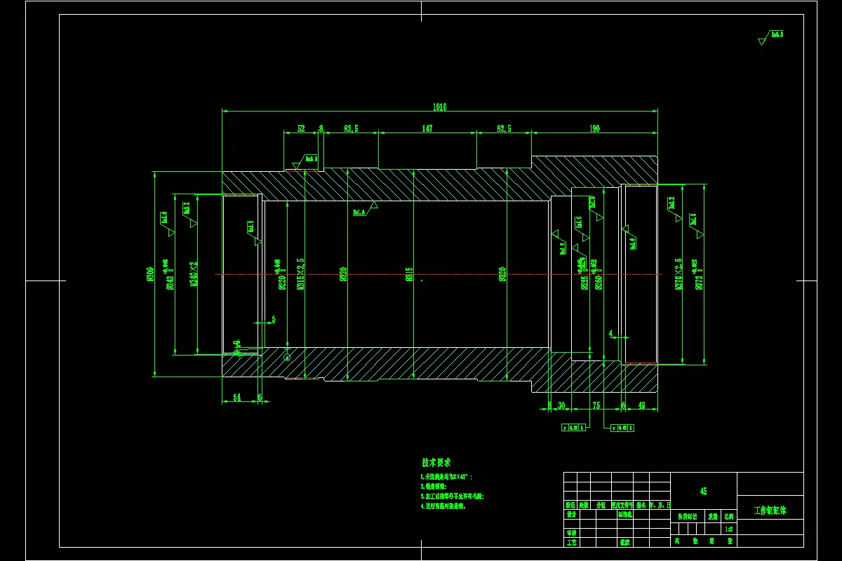
第3章液压缸的设计与校核9
3.1液压缸的基本结构设计9
3.1.1液压缸的类型9
3.1.2钢筒的连接结构9
3.1.3缸底结构9
3.1.4油缸放气装置9
3.1.5缓冲装置10
3.2缸体结构的基本参数确定10
3.3液压缸设计与校核11
3.3.1筒壁厚11
3.3.2缸底厚度12
3.3.3缸筒端部法兰厚度12
3.3.4连接螺栓14
3.3.5活塞杆直径d的校核15
第4章液压元件的设计与选择15
4.1液压泵及电动机的选择16
4.1.1液压泵及电动机的选择16
4.1.2液压泵的安装方式16
4.1.3电动机与液压泵的联接方式17
4.2液压控制阀的选择17
4.3选择辅助元件18
4.3.1液压油箱的设计18
4.3.2油管的计算和选择19
4.3.3过滤器的选择20
4.4液压系统性能校核21
4.4.1液压系统压力损失21
4.4.2系统发热计算22
总结24
参考文献25
致谢26
温馨提示:
1、题目前面的备注【字母数字编号】为本站整理分类的编号,与课题内容无关,请选题时忽视;
2、若题目上备注三维,则表示文件里包含三维源文件,由于三维组成零件数量较多,为保证预览截图的简洁性,本站将三维文件夹进行了打包。三维及CAD预览截图,均为本站电脑打开软件进行截图的,保证能够打开,下载原件超高清,下载后解压即可;
3、本站所有资源如无特殊说明,都需要本地电脑安装Office2007。图纸软件为AutoCAD,PROE,UG,SolidWorks,CATIA等;
4、本站所有图文资料仅供用户学习参考,不作为任何商用或其他用途;
5、本站不保证下载资源的准确性、安全性和完整性, 不包修改,不支持退换,同时也不承担用户因使用这些下载资源对自己和他人造成任何形式的伤害或损失;
6、 下载文件中如有侵权或不适当内容,请与我们联系,我们立即纠正。