

作品包括
Word版说明书1份,共41页,约11000字
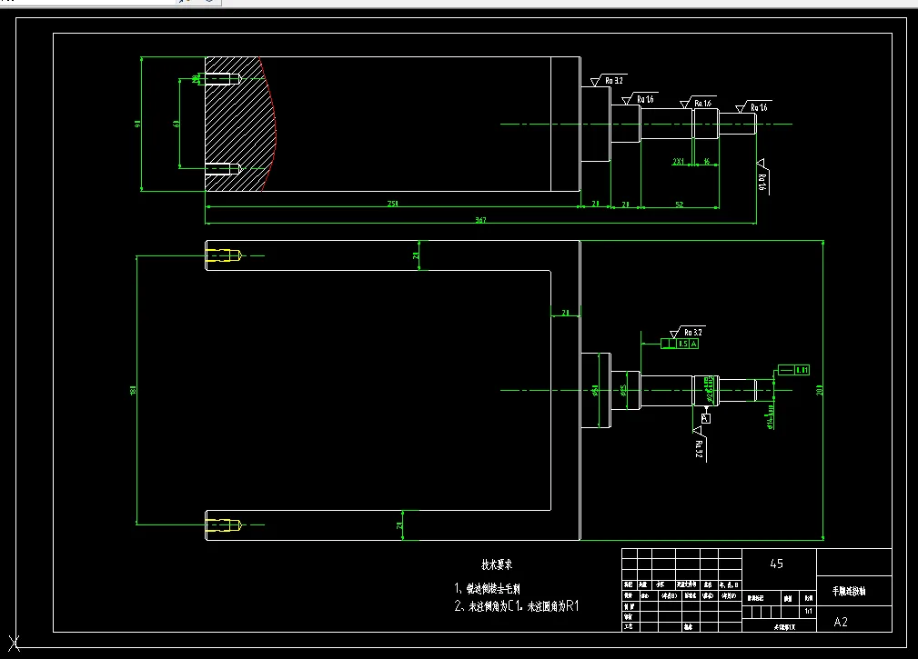
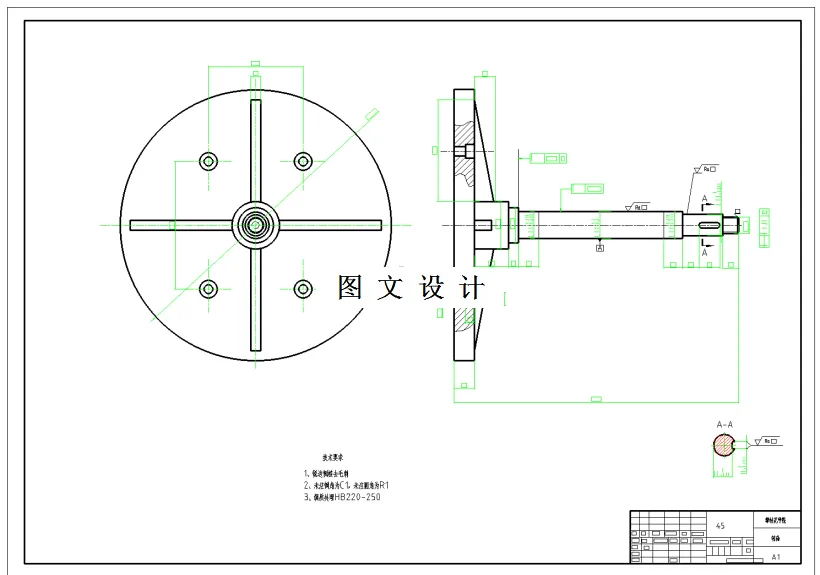
CAD版本图纸,共3张

摘 要
随着机械的发展,很多各种新型的设备被广泛的用到各行各业当中,尤其是这些搬运机械手和机械手器人,也是被用到比如物流港口以及煤矿开采等行业,能够取代人工实现高效率的作业要求,有着非常好的操作性能,特别是对于各种不同复杂的工作环境当中,有着比较好的适应性,尤其是在矿石和建筑中往往通过人工码垛物品的话,存在一定的危险性,并且对于部分的材料重量都比较大,人工作业效率非常的低。机械手的使用也是近些年普及起来的,由于有着各方面的优点,因此受到各行各业的偏好,目前市场需求量也比较大,对于制造企业来说也是一个比较好的机遇,在工艺和性能上设计出一款更能满足市场要求的机械臂设备,更有优势。
本次设计多自由度机械臂,主要是结合目前市面上的各种机械臂结构,满足用在对于物料的抓取要求,结构主要使用电机驱动,,设计的任务涵盖结构的方案确定,以及主要零部件的计算校核。并通过画图软件完成整个液压机械手的零部件和整体结构的图纸。
关键词: 机械臂;计算校核;方案确定
目录
摘 要 1
关键词 1
Abstract 2
目录 3
第一章 绪论 3
1.1 课题的背景和意义 4
1.2机械臂的发展现状及趋势 4
第二章多自由度机械臂方案设计 5
2.1方案确定 6
2.2方案分析 6
第三章机械臂机械结构设计 8
3.1驱动夹爪的设计 9
3.2夹爪旋转的驱动伺服电机选择 12
3.3前臂的驱动伺服电机选择 14
3.4后臂的驱动伺服电机的选择 15
3.5Z轴回转伺服电机设计选择 15
3.6 齿轮传动的设计计算 16
3.6.1 选择齿轮传动的类型与材料 16
3.6.2 按齿面接触疲劳强度设计 16
3.6.3 按齿根弯曲强度设计 18
3.6.4 几何尺寸计算 20
3.7联轴器的设计选择 25
第四章转动轴受力分析与强度校核 28
4.1主轴的基本尺寸设计 28
4.2校核转动轴的强度 29
4.3校核轴的刚度 31
4.3.1轴的刚度 31
4.3.2横向转动轴刚度的要求 32
结论 34
致谢 35
参考文献 36
温馨提示:
1、题目前面的备注【字母数字编号】为本站整理分类的编号,与课题内容无关,请选题时忽视;
2、若题目上备注三维,则表示文件里包含三维源文件,由于三维组成零件数量较多,为保证预览截图的简洁性,本站将三维文件夹进行了打包。三维及CAD预览截图,均为本站电脑打开软件进行截图的,保证能够打开,下载原件超高清,下载后解压即可;
3、本站所有资源如无特殊说明,都需要本地电脑安装Office2007。图纸软件为AutoCAD,PROE,UG,SolidWorks,CATIA等;
4、本站所有图文资料仅供用户学习参考,不作为任何商用或其他用途;
5、本站不保证下载资源的准确性、安全性和完整性, 不包修改,不支持退换,同时也不承担用户因使用这些下载资源对自己和他人造成任何形式的伤害或损失;
6、 下载文件中如有侵权或不适当内容,请与我们联系,我们立即纠正。