

作品包括:
Word版设计说明书1份,共72页,约21000字
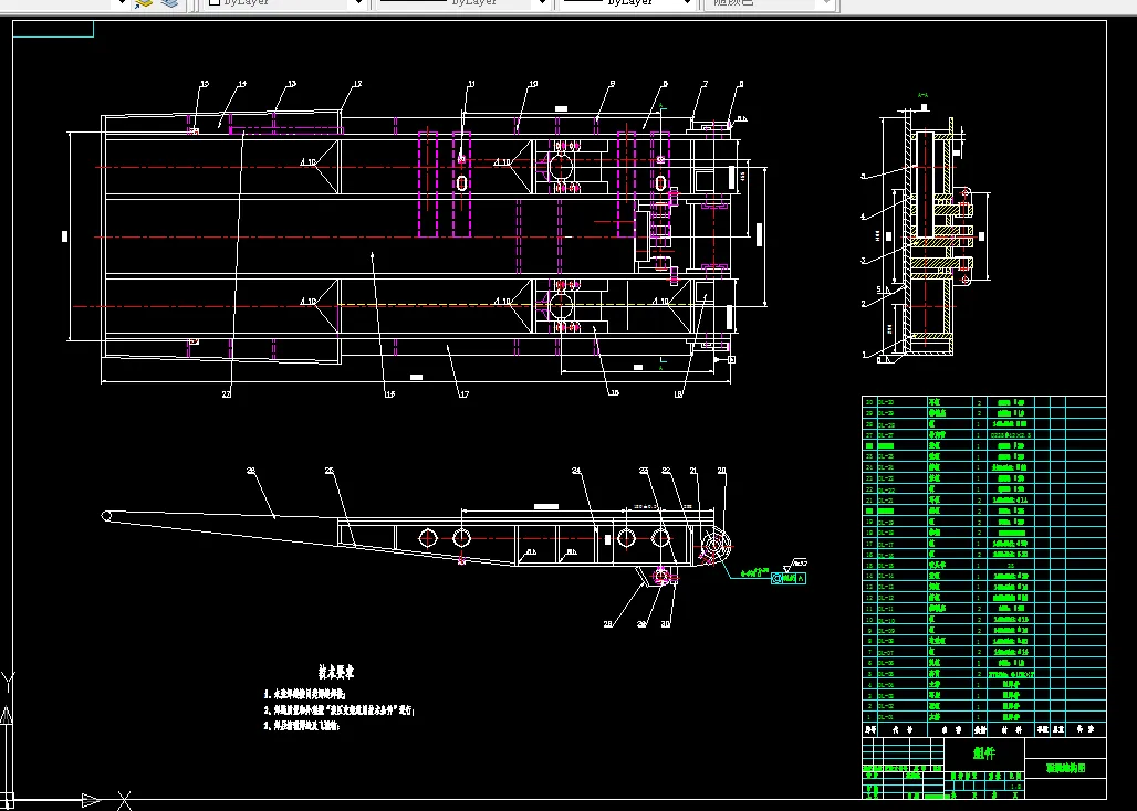
CAD版本图纸,共7张

摘 要
科技快速发展,煤矿综采机械不断创新发展,机械化程度不断提高。煤炭资源随着时间的推移不断减少,中厚煤层作为主要开采区,煤炭储量日渐减少。所以薄煤层煤炭的开采逐渐受到人们的关注,但是目前薄煤层开采技术不够完善,开采效率低、机械化程度低、成本高等是目前主要的问题。而液压支架作为重要的支护设备,在现有技术的基础上,研制更加适合,更加高效的薄煤层液压支架尤为关键。本次设计就是研制一款薄煤层液压支架,应用于薄煤层煤炭开采。
关键词:薄煤层液压支架、顶梁、底座、立柱、、受力分析、液压系统
目录
1 绪论 6
1.1 国内外薄煤层液压支架的发展状况 6
1.2 液压支架简介 7
2 液压支架设计方案论证 9
2.1 液压支架设计条件 9
2.2液压支架设计方案 9
3 液压支架部件选型设计 11
3.1顶梁 11
3.2侧护板 12
3.3底座 13
3.4 掩护梁和前后连杆 16
3.5推移装置 16
3.6立柱和千斤顶 17
3.7四连杆机构 19
4 液压支架具体参数确定 24
4.1支架基本参数 24
4.2立柱技术参数 26
4.3千斤顶各项技术参数 32
5 液压支架受力分析 40
5.1概述 40
5.2液压支架受力分析 40
5.3顶梁载荷分布 44
5.4底座接触比压的计算 45
5.5实际支护强度计算 47
5.6支架支护效率计算 48
5.7液压支架受力的影响因素 48
6 液压支架的强度计算 49
6.1液压支架各结构的强度条件 49
6.2液压支架组成部件的强度校核 49
6.3立柱的强度校核 59
6.4支架中重要销轴的强度验算 63
7 液压支架的液压系统设计 65
7.1液压系统简介 65
7.2液压系统拟定 65
8 结 论 68
参考文献69
温馨提示:
1、题目前面的备注【字母数字编号】为本站整理分类的编号,与课题内容无关,请选题时忽视;
2、若题目上备注三维,则表示文件里包含三维源文件,由于三维组成零件数量较多,为保证预览截图的简洁性,本站将三维文件夹进行了打包。三维及CAD预览截图,均为本站电脑打开软件进行截图的,保证能够打开,下载原件超高清,下载后解压即可;
3、本站所有资源如无特殊说明,都需要本地电脑安装Office2007。图纸软件为AutoCAD,PROE,UG,SolidWorks,CATIA等;
4、本站所有图文资料仅供用户学习参考,不作为任何商用或其他用途;
5、本站不保证下载资源的准确性、安全性和完整性, 不包修改,不支持退换,同时也不承担用户因使用这些下载资源对自己和他人造成任何形式的伤害或损失;
6、 下载文件中如有侵权或不适当内容,请与我们联系,我们立即纠正。