

作品包括:
Word版说明书1份,共52页,约19000字
外文翻译一份
CAD版本图纸,共9张
摘 要
新型消声器可有效消除噪声并有效降低汽车的尾气排放量,降低环境污染,因此该产品具有重要的社会意义和经济价值,市场前景非常广阔。新型消声器用不锈钢管件是新型消声器的主要零件,设计新型消声器用不锈钢管件加工专用设备对于提高消声器的生产效率和产品质量都具有重要意义。本课题的主要任务是设计一台用于加工新型消声器用不锈钢管件的专用设备,对不锈钢管件加工的各种工艺和方法进行分析、比较,对日产量为300件的不锈钢管件加工 专用设备进行总体设计,包括机械部分和电器部分,机械部分主要设计了减速器、丝杠、导轨、气压系统、和机架,电气控制部分主要设计继电器--接触器控制系统的基本控制电路。且设备的加工精度、生产率、可靠性等指标符合企业要求,设计的装置应操作方便。设计过程中,减速器、丝杠的设计占主要部分,先对零部件进行尺寸设计,然后对其进行必要的强度、刚度校验。液压系统的设计是先根据气缸的载荷、行程等参数选取标准气缸产品和其他气压元件,然后根据工作机构运动要求和结构要求进行气压系统图的设计。电器部分在本设备中主要是控制电机的正反转。经过两个月的努力,以上工作已经完成。
关键字:减速器;涡轮蜗杆;丝杠;导轨;气压传动;继电器-接触器控制系统
目 录
1 传动机构的拟定 6
1.1 机械传动参考方案 6
1.1.1方案比较 7
1.1.2确定设计方案 8
1.2 流体压力传动参考方案 8
1.2.1液压传动的特点 8
1.2.2气压传动的特点 8
1.2.3确定设计方案 9
2 电动机的选择 9
2.1 选择电动机的系列 9
2.2 计算电动机功率 9
2.3 确定电动机转速 10
2. 4 选择电动机型号 11
3 传动系统的运动学和动力学的计算 11
3.1 计算总传动比和各级传动比的分配 11
3.1.1计算总传动比 11
3.1.2各级传动比的分配 11
3.2 计算传动装置的运动和动力参数 11
4 零件的设计计算 13
4.1 传动零件的设计计算 13
4.1.1蜗杆蜗轮的设计 13
4.1.2蜗轮与蜗杆的主要参数和几何尺寸 14
4.1.3蜗杆传动的受力分析 16
4.1.4校核齿面接触疲劳强度 16
4.1.5校核齿根弯曲疲劳强度 17
4.1.6校核蜗杆的刚度 17
4.1.7精度等级公差和表面粗糙度的确定 18
4.1.8蜗轮蜗杆的机构设计 18
4.2 轴的设计计算及校核 19
4.2.1蜗轮轴的设计 19
4.2.2蜗杆轴的设计 23
4.3 轴承的选择和计算 27
4.3.1蜗轮轴上轴承的选择和计算 27
4.3.2蜗杆轴上轴承的选择和计算 29
4.4 键连接的选择和校核 30
4.4.1蜗轮轴上键的选择和校核 30
4.4.2蜗杆轴上键的选择和校核 31
4.5 联轴器的选择和校核 31
4.5.1蜗轮轴上联轴器的选择和校核 31
4.5.2蜗杆轴上联轴器的选择和校核 32
4.6 箱体的设计 32
4.6.1传动件及箱体轴承座位置的确定 32
4.6.2箱体结构形式和材料的选择 32
4.6.3箱体的主要结构和尺寸关系 33
4.6.4箱体结构的结构性和工艺性 33
5 润滑和密封的选择和计算 34
5.1 润滑的选择和计算 34
5.1.1齿轮的润滑 34
5.1.2减速器中传动件通常用浸油润滑 34
5.1.3轴承的润滑 34
5.2 密封的选择 35
6 减速器附件的选择 35
6.1 通气器 35
6.2 轴承盖(材料为HT150) 35
6.3 油面指示器 35
6.4 油塞 35
6.5 窥视孔及视孔盖 36
6.6 起盖螺钉 36
6.7 定位销 36
7 滑动丝杠的设计 36
7.1 滑动丝杠螺母机构的传动方式 36
7.2 滑动螺母结构 36
7.3 丝杠支承 37
7.4 丝杠牙形的选择 37
7.5 螺距的选择 37
7.6 丝杠直径的确定 37
7.7 螺母长度H的确定 39
7.8 丝杠螺纹部分 的长度 39
8 滑动导轨 40
8.1 导轨材料的要求和搭配 40
8.2 导轨的结构 41
8.3 滑动导轨的验算 41
9 液压系统的设计 44
9.1 气缸的选择 44
9.2 气压原理图 46
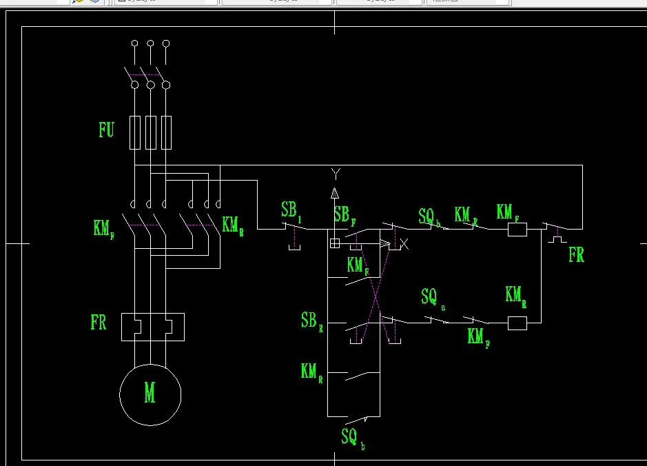
10 电气原理图 47
11 设备执行机构动作说明 48
结论 48
参考文献 49
谢 辞 50
温馨提示:
1、题目前面的备注【字母数字编号】为本站整理分类的编号,与课题内容无关,请选题时忽视;
2、若题目上备注三维,则表示文件里包含三维源文件,由于三维组成零件数量较多,为保证预览截图的简洁性,本站将三维文件夹进行了打包。三维及CAD预览截图,均为本站电脑打开软件进行截图的,保证能够打开,下载原件超高清,下载后解压即可;
3、本站所有资源如无特殊说明,都需要本地电脑安装Office2007。图纸软件为AutoCAD,PROE,UG,SolidWorks,CATIA等;
4、本站所有图文资料仅供用户学习参考,不作为任何商用或其他用途;
5、本站不保证下载资源的准确性、安全性和完整性, 不包修改,不支持退换,同时也不承担用户因使用这些下载资源对自己和他人造成任何形式的伤害或损失;
6、 下载文件中如有侵权或不适当内容,请与我们联系,我们立即纠正。