N7210-都市御景小区多层住宅楼设计
N6617-南京江宁万达广场幕墙安装施工组织设计
Z2147-五层5832平米天津某大学钢结构教学楼设计
Z2109-无锡滨湖区某会议中心3号楼结构设计
Z1968-长230m单洞双线铁路隧道抗震设计
Z1889-重庆新建二级公路设计
Z1888-60x30米单层工业厂房结构设计
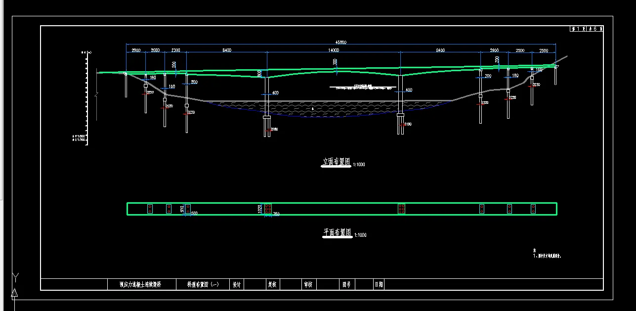
Z1882-3跨(50-100-50)预应力混凝土箱型连续梁桥设计
Z1881-某某中学教学楼土木工程专业教学楼设计
Z1853-某跨江连续梁桥设计
Z1842-某地铁车站施工方案设计
Z1802-某地铁车站建筑及基础施工设计
Z1818-大庆市某学校图书馆建筑结构设计
Z1821-哈市某六层学生公寓楼建筑结构设计
Z1820-六层工程学院教学楼建筑结构设计
Z1817-大庆市某学校五层框架式图书馆设计
Z1816-赣州市某六层办公楼建筑结构设计
Z1819-赣州市某七层商务酒店建筑结构设计
Z1806-湘潭市某商住楼基坑支护设计
M6592-长沙火车站金工装配车间设计