H165-CA6140车床拨叉[831007]工艺及铣断夹具设计-气动
K192B-CA6140车床拨叉[831007]工艺及铣端面夹具设计[含三维图]
K192-CA6140车床拨叉[831007]工艺及铣端面夹具设计
KS58-CA6140拨叉机械加工工艺规程及铣槽夹具设计【含SW三维图】
R137-CA6140车床拨叉[831006]加工工艺规程及夹具设计【2套夹具毕设版】
KS57-CA6140车床拨叉[831006]工艺及夹具设计[含SW三维图2套夹具]
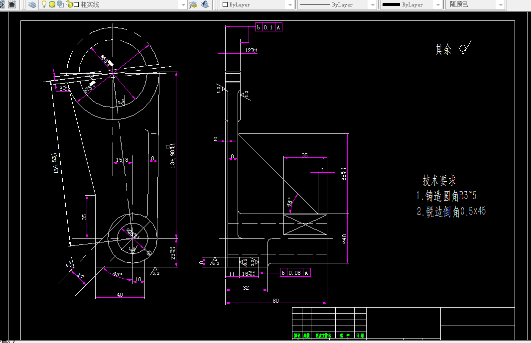
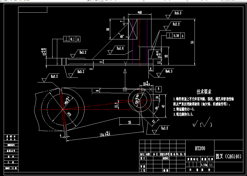
B029-CA6140车床拨叉[831006]工艺及夹具设计[三套夹具毕设版]
KS56-CA6140车床拨叉[831006]工艺及钻25孔夹具设计
KS55-CA6140车床拨叉[831006]工艺及钻25孔夹具设计
KS54-CA6140车床拨叉[831006]工艺及铣断夹具设计
KS53-CA6140车床拨叉[831006]工艺及铣16槽夹具设计[含三维图]
KS52-CA6140车床拨叉[831006]工艺及铣75上端面夹具设计-双件
KS51-CA6140车床拨叉[831006]工艺及铣16槽夹具设计-气动
KS50-CA6140车床拨叉[831006]工艺及铣40X32端面夹具设计[含UG三维图]
B029A-CA6140车床拨叉[831006]工艺及铣16槽夹具设计
H172-CA6140车床拨叉[831006]工艺及车55圆弧的车床夹具设计
KS49-CA6140车床拨叉[831006]工艺及车φ40端面夹具设计
AA6-CA6140车床拨叉[831006]工艺及钻25H7孔,扩55H12孔夹具设计[含Proe三维图]
I007-CA6140车床拨叉[831006]工艺及车φ55圆弧车床夹具设计
K006-CA6140车床拨叉[831006]工艺及钻φ55孔夹具设计