M8256-城镇垃圾运输车远程称重控制系统设计
M8255-基于单片机的3D打印机控制系统设计
M8254-城市供暖热量计量计费系统设计
M8253-一种小型回流焊炉设计
M8252-单片机控制的开关稳压电源的设计
M8251-汽车车门设计与建模
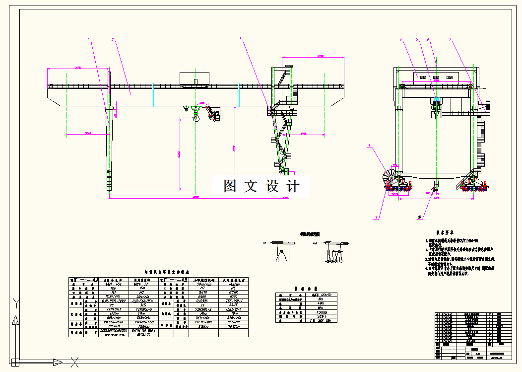
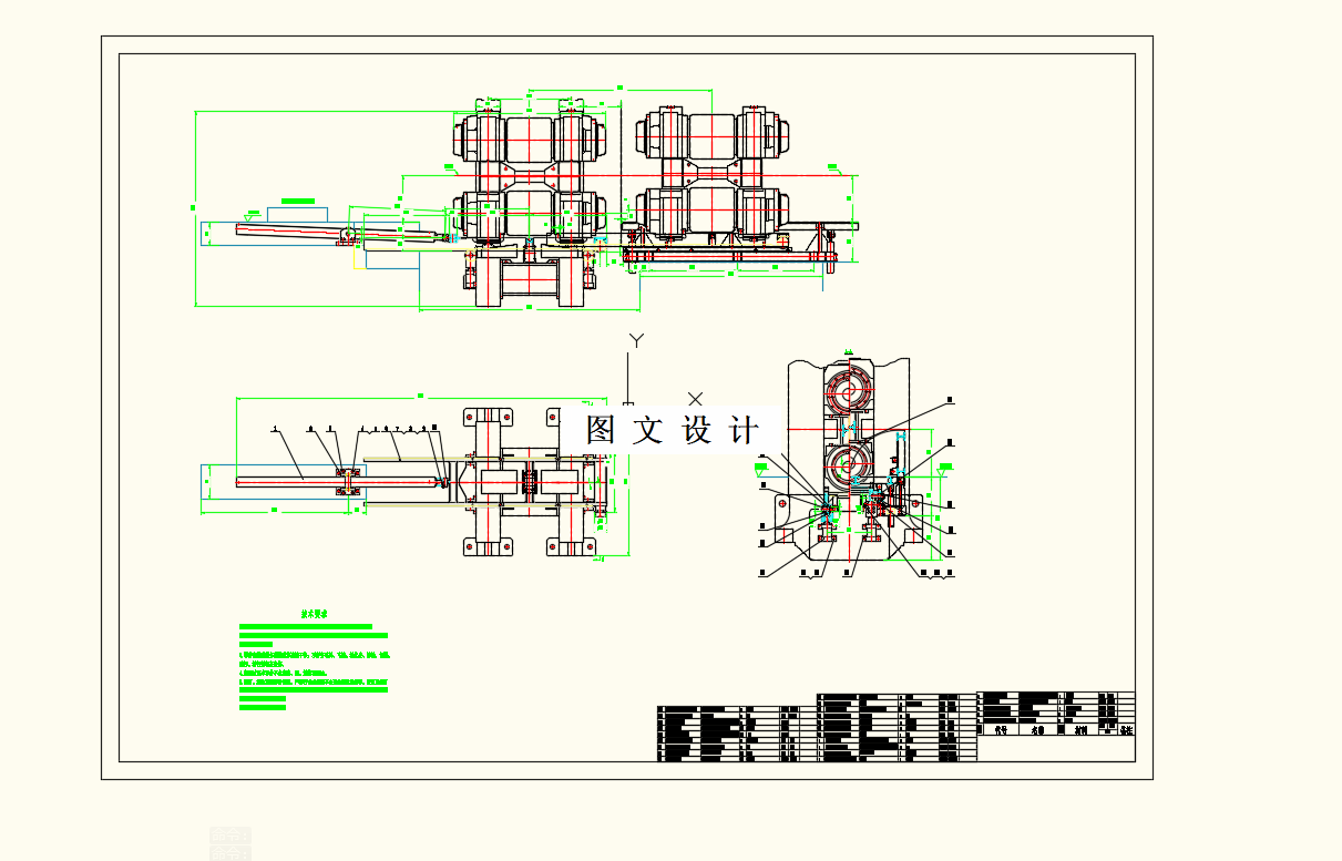
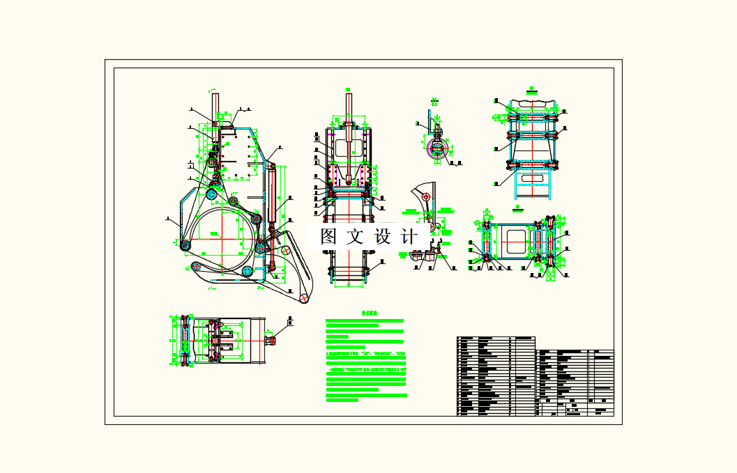
M8249-45t轨道门式起重机设计
M8248-轿车杂物箱盖设计(手套箱)
M8247-重卷机圆盘剪装置设计
M8246-轿车后门装饰板设计
Z1061-农用四驱电动汽车底盘设计
M8243-镁合金温轧机组工作辊快速换辊装置设计
M8242-镁合金温轧机组支撑辊换辊装置设计
M8241-镁合金温轧机组装卸卷小车设计
M8240-警用排爆机器人机械手爪的设计
M8239-大型仓库智能装卸小车整车机构设计【含UG三维图】
M8238-铜合金冷轧机组卷取机皮带助卷器设计
M8237-秸秆揉搓机的设计【含SW三维图】
M8236-多旋翼无人机电机测试系统设计
M8235-打印机控制系统设计