

作品包括:
Word设计说明书1份,共50页,约19000字
任务书一份
开题报告一份
外文翻译一份
CAD版本图纸,共10张

摘要
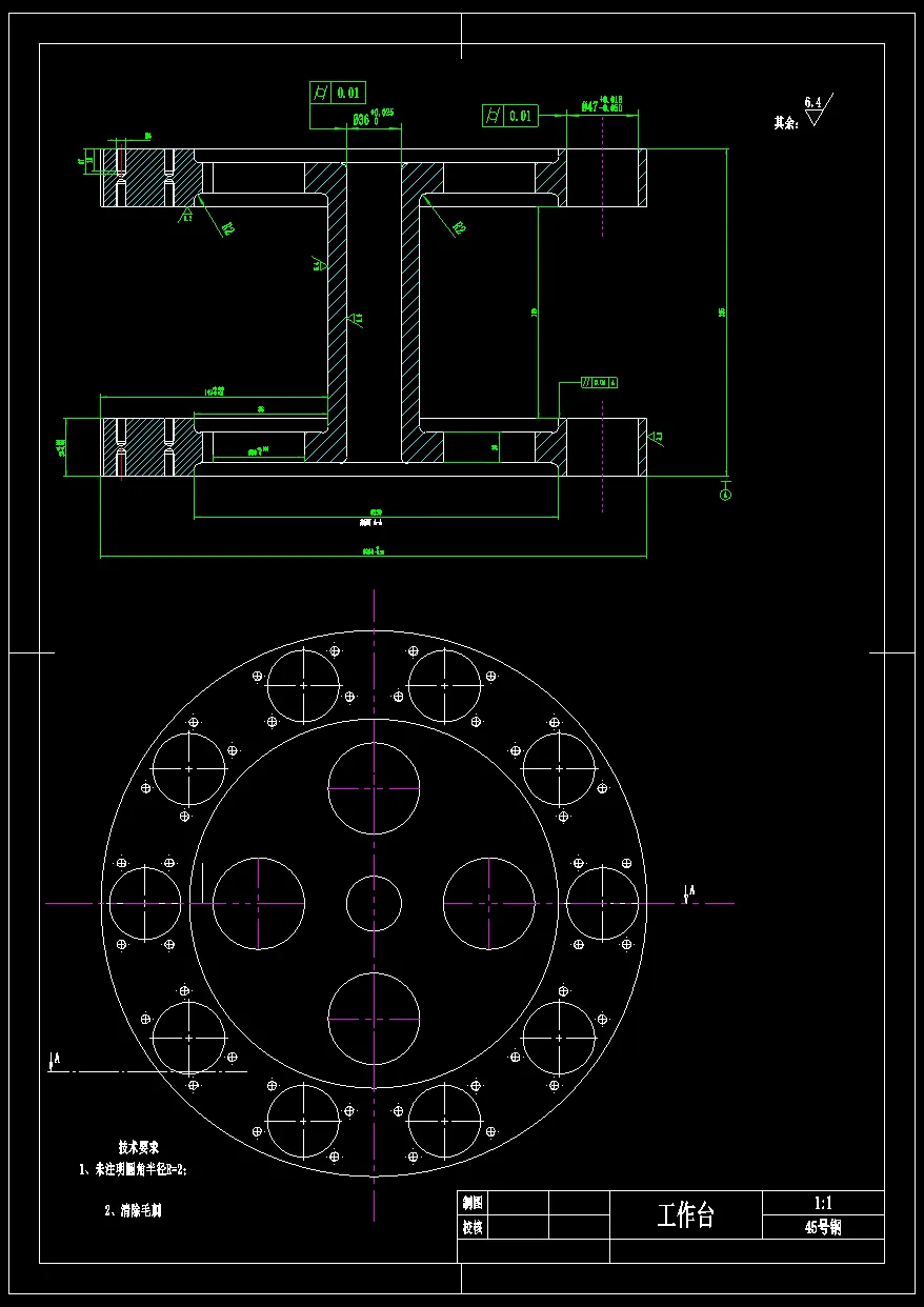
本工作台的工作原理:首先从加工零件的装夹出发,设计加工的零件为圆柱体,装夹机构分为主动顶杆与从动顶杆,从动顶杆可在水平方向移动一定距离,装夹时,工件水平放置与主动顶杆与从动顶杆之间,由动顶杆提供夹紧力讲工件夹紧。然后是工作台工位的布置,工作转台为两对称分布的圆盘,中间由一空心轴连接,工位则均匀的分布在圆盘上面。最后是工作台的运转,工作台运转可分为公转与自转,自转体现在工位的自转,带动工件自转完成焊接;公转体现在工作转台的旋转,实现加工工位之间的转换。公转采用间歇式旋转,而其停顿的时间恰为工位自转一周所用时间。公转的间歇式运动由步进电机实行。
关键词:分度回转工作台;多工位;公转与自转
目 录
引言 1
1.1 国内外转台简介 1
2 工作台的方案设计及相应尺寸设计 1
2.1 设计要求 1
2.2 设计方案的选择 2
2.3 设计方案的确定 3
2.4 工作台台体设计计算 4
2.4.1 初定工位数 4
2.4.2工位滚动轴承的选择 4
2.4.3 工作台台体尺寸的确定 6
2.4.4 工作台的设计 7
3 工作台动力系统设计 7
3.1 传动比的设定 7
3.2 公转与自转时的最大回转速度 8
3.3 步进电机选择 8
4 齿轮减速机构的设计 9
4.1 自转工作台用于驱动工位自转的齿轮设计 9
5 蜗轮蜗杆设计 10
5.1 公转蜗轮蜗杆设计 11
5.1.1.选择蜗杆传动类型 11
5.1.2.材料的选择 11
5.1.3.按齿面接触疲劳强度进行设计 12
5.1.4校核蜗轮抗弯强度 14
5.1.5 蜗杆、蜗轮股部分尺寸的计算 14
5.1.6热平衡计算 15
5.2 自转蜗轮蜗杆设计 15
5.2.1 选择蜗杆传动类型 15
5.2.2.材料的选择 15
5.2.3按齿面接触疲劳强度进行设计 15
5.2.4校核蜗轮抗弯强度 17
5.2.5 蜗杆、蜗轮股部分尺寸的计算 17
5.2.6热平衡计算 18
6 轴的设计 18
6.1 主轴的材料选取 18
6.1.2 初步估算轴的最小直径 18
6.1.3按扭转强度校核轴的强度 18
6.1.4 按弯扭组合校核轴的强度 19
6.1.5 拟定装配方案 19
6.1.6 根据轴向定位的要求确定轴的各段直径和长度 19
6.1.7 计算过程 20
6.1.8按弯扭合成应力校核轴的强度 22
6.1.9精确校核轴的疲劳强度 22
6.2 蜗杆传动轴的设计 24
6.2.1 轴的材料选取 25
6.2.2 初步估算轴的最小直径 25
6.2.3按扭转强度校核轴的强度 25
6.2.4 按弯扭组合校核轴的强度 25
6.2.5 拟定装配方案 25
6.2.6 根据轴向定位的要求确定轴的各段直径和长度 26
6.2.7 计算过程 26
6.2.8 按弯扭合成应力校核轴的强度 28
6.2.9 精确校核轴的疲劳强度 29
7 顶杆的设计 31
7.1 主动顶杆的设计 31
7.2 从动顶杆设计 32
8 轴承设计 33
8.1 计算过程 34
8.1.2 轴承的轴向力计算 34
8.1.3 轴承的当量动载荷 34
8.1.4轴承的动载荷C 35
8.2其他轴承的选择 35
9 法兰设计 35
10 键的选择 36
10.1 公转蜗轮键连接 37
10.2 工作转台键连接 37
11 螺纹连接 38
11.1螺栓连接的设计 38
11.1.1螺栓组的设计 38
11.1.2 螺栓受力分析 38
11.1.3 确定螺栓直径 39
11.2 螺钉连接的设计 39
12 箱体的设计 40
12.1箱体的主要功能 40
12.2箱体的分类 40
12.3 箱体结构设计 41
13 润滑 41
14 总结 41
谢词 43
参考文献 44
温馨提示:
1、题目前面的备注【字母数字编号】为本站整理分类的编号,与课题内容无关,请选题时忽视;
2、若题目上备注三维,则表示文件里包含三维源文件,由于三维组成零件数量较多,为保证预览截图的简洁性,本站将三维文件夹进行了打包。三维及CAD预览截图,均为本站电脑打开软件进行截图的,保证能够打开,下载原件超高清,下载后解压即可;
3、本站所有资源如无特殊说明,都需要本地电脑安装Office2007。图纸软件为AutoCAD,PROE,UG,SolidWorks,CATIA等;
4、本站所有图文资料仅供用户学习参考,不作为任何商用或其他用途;
5、本站不保证下载资源的准确性、安全性和完整性, 不包修改,不支持退换,同时也不承担用户因使用这些下载资源对自己和他人造成任何形式的伤害或损失;
6、 下载文件中如有侵权或不适当内容,请与我们联系,我们立即纠正。