

作品包括:
Word版说明书1份,共82页,约38000字
CAD版本图纸,共5张
摘 要
崔家寨井田位于河北省张家口地区蔚县境内,井田内地形北高南低,属丘陵地形,井田内深切的”V”型冲沟比较发育,平时干枯无水,雨季泄洪于壶流河中。井田地质条件简单,开采6#煤层赋存稳定,平均倾斜角度为3.5°。矿井设计生产能力为0.9Mt/a,设计服务年限44.6年。根据崔家寨煤矿井田的实际情况,确定矿井的开拓方式为立井单水平开采。倾向长壁一次采全高,综合机械化采煤工艺,顶板处理方法为自然垮落法。矿井工作制度为“三八制”,两班采煤,一班准备,矿井设计年工作日为330d。矿井采用现代化设备进行矿井的采煤、运输、提升、排水、和通风。
关键词:单水平开采 倾向长壁 现代化设备
目 录
第一章 井田概况及地质特征 1
1.1 矿区概述 1
1.1.1 交通位置 1
1.1.2 地形地貌 1
1.1.3 矿区气候条件 2
1.1.4 矿区经济概况 2
1.1.5 现有水源、电源情况 2
1.2 井田地质特征 2
1.2.1 地质构造及煤层 2
1.2.2 地质构造 4
1.2.3 岩浆岩 4
1.2.4 水文地质 4
1.3 煤层特征 6
1.3.1 可采煤层情况 6
1.3.2 煤质、牌号及用途 6
1.3.3 煤层顶底板岩石特性 7
1.3.4 其他开采技术条件 8
1.4 勘探程度及可靠性 8
1.4.1 勘探程度评价 8
1.4.2 存在的主要问题及建议 9
第二章 井田境界和储量 10
2.1 井田境界 10
2.1.1 井田范围 10
2.1.2井田面积 10
2.2矿井工业储量 10
2.2.1 储量计算基础 10
2.2.2 井田地质勘探 11
2.2.3 工业储量计算 11
2.3 矿井可采储量 13
2.3.1 安全煤柱留设原则 13
2.3.2 矿井永久保护煤柱损失量 13
2.3.3 矿井可采储量 16
第三章 矿井工作制度、设计生产能力及服务年限 17
3.1 矿井工作制度 17
3.2 矿井设计生产能力及服务年限 17
3.2.1 确定依据 17
3.2.2 矿井设计生产能力 17
3.2.3 矿井服务年限 18
3.2.4 井型校核 18
第四章 井田开拓 20
4.1 井田开拓的基本问题 20
4.1.1 确定井筒的形式、数目及位置 21
4.1.2 工业场地的位置 22
4.1.3 开采水平确定及采盘带区划分 22
4.1.4 主要开拓巷道 22
4.1.5 方案比较 23
4.2 矿井基本巷道 27
4.2.1 井筒 27
4.2.2井底车场 28
4.2.3井底车场硐室 29
4.2.4井底车场巷道及硐室支护 29
4.2.5井底车场铺轨 29
4.2.6主要开拓巷道 30
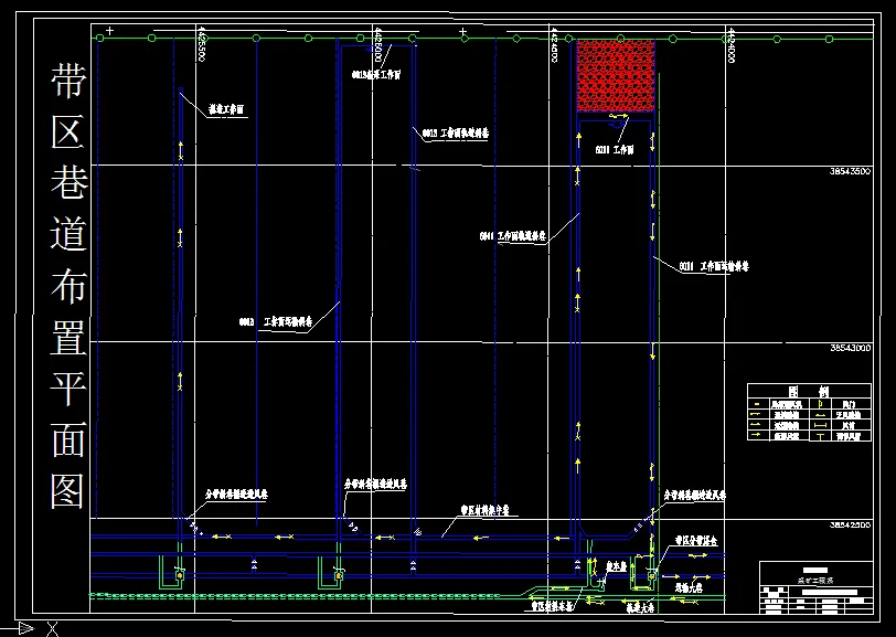
第五章 准备方式--采区巷道布置 35
5.1煤层的地质特征 35
5.1.1煤层埋藏条件 35
5.1.2 煤质与地质情况 35
5.1.3 煤质、牌号及用途 35
5.1.4 煤层顶底板岩石特性 36
5.2 带区巷道布置及生产系统 36
5.2.1带区数目及位置 36
5.2.2带区走向长度的确定 36
5.2.3带区生产系统 37
5.2.4 带区巷道掘进方法 37
5.2.5采区生产能力 37
5.3采区主要硐室 38
第六章 采煤方法 39
6.1采煤工艺方式 39
6.1.1采煤方法的选择 39
6.1.2回采工作面长度、工作面推进长度和推进度 39
6.1.3采煤工艺及设备 41
6.1.4回采工作面支护方式 44
6.1.5 各工艺过程注意事项 47
6.1.6 采煤工作面正规循环作业 49
6.2回采巷道布置 50
6.2.1 回采巷道布置方式 50
6.2.2 回采巷道参数 51
第七章 井下运输 53
7.1 概述 53
7.1.1 井下运输的原始条件 53
7.2 采区运输设备选择 53
7.2.1采区运煤设备的选择 53
7.2.2采区辅助运输设备的选择 54
7.3大巷运输设备选择 55
7.3.1主要运输大巷运输设备 55
7.3.2辅助运输大巷设备选择 55
第八章 矿井提升 57
8.1概述 57
8.2主副井提升 57
第九章 矿井通风与安全 59
9.1 矿井通风系统选择 59
9.1.1选择通风系统的原则 59
9.1.2通风方式的选择 59
9.1.3 矿井主要通风机工作方式 60
9.1.4 采区通风 61
9.1.5 工作面通风方式的选择 62
9.2矿井所需风量 63
9.3全矿通风阻力的计算 64
9.4矿井主要通风机选型 65
9.4.1矿井自然风压 65
9.4.2 主要通风机选型 66
9.4.3电动机选型 67
9.4.4矿井主要通风设备的配置及要求 68
9.5防止特殊灾害时期的安全措施 68
10 矿井基本技术经济指标 71
温馨提示:
1、题目前面的备注【字母数字编号】为本站整理分类的编号,与课题内容无关,请选题时忽视;
2、若题目上备注三维,则表示文件里包含三维源文件,由于三维组成零件数量较多,为保证预览截图的简洁性,本站将三维文件夹进行了打包。三维及CAD预览截图,均为本站电脑打开软件进行截图的,保证能够打开,下载原件超高清,下载后解压即可;
3、本站所有资源如无特殊说明,都需要本地电脑安装Office2007。图纸软件为AutoCAD,PROE,UG,SolidWorks,CATIA等;
4、本站所有图文资料仅供用户学习参考,不作为任何商用或其他用途;
5、本站不保证下载资源的准确性、安全性和完整性, 不包修改,不支持退换,同时也不承担用户因使用这些下载资源对自己和他人造成任何形式的伤害或损失;
6、 下载文件中如有侵权或不适当内容,请与我们联系,我们立即纠正。