

作品包括:
说明书一份,131页,66000字左右.
CAD版本图纸,共6张
摘 要
本设计包括三个部分,即矿井新井设计部分(一般部分)、专题部分和翻译部分。
一般部分是山西阳煤集团新元矿180万吨井型的新井设计。其内容主要有:
1.井田概况:矿井位于山西省寿阳县境内,地理位置优越,交通便利。井田走向长10km,倾斜长5.5km,主要可采煤层有3号煤层,煤层倾角10°左右,属高瓦斯矿井。井田地质条件比较简单。
2.开拓开采设计:根据新元矿煤层储存条件及煤炭部设计规范,确定井田采用斜井加立井开拓,水平标高为+630m,矿井服务年限为69年。
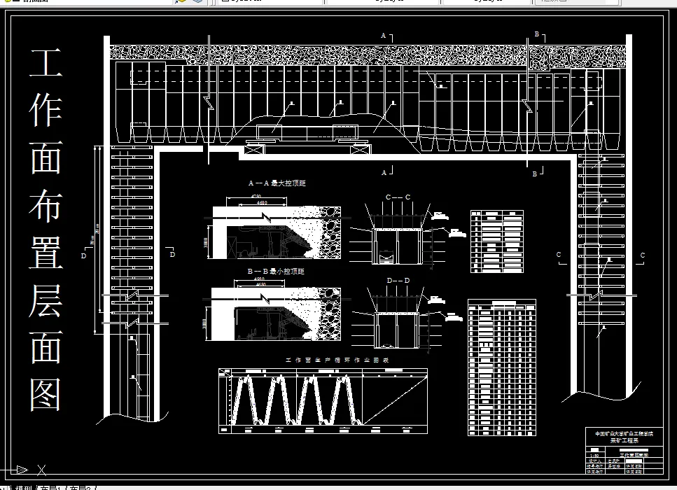
3.采煤方法设计:设计工作面采用倾斜长壁采煤法,采用综采采煤工艺,采空区用全部垮落发处理。由一个工作面达到设计产量,工作面生产能力均为169万t/a。设计工作面采用四六制工作。
4.矿井通风设计:根据本矿开拓开采条件,采用分区式通风,风量分配由内向外计算,工作面采用“W”型通风方式。掘进面用局扇进行压入式通风。根据通风容易、困难时期的通风阻力选择BDNo22型主扇。矿井通过风机反转反风。
5.井下运输与提升:运煤采用1.2m强力皮带,辅助运输统一采用无轨胶轮车运输方式。主井采用钢丝绳强力皮带提煤,副井采用无轨胶轮车辅助运输。
6.矿井其他安全技术措施的设计:主要包括防水、瓦斯、煤尘等方面的内容。
专题部分针对新元煤矿属高瓦斯矿井,煤层埋藏深,矿井瓦斯涌出量大,严重影响矿井的安全生产。高瓦斯掘进工作面由于煤体瓦斯含量大,瓦斯释放量大,在贯通过程中极易发生瓦斯超限事故。分析高突矿井巷道贯通期间发生瓦斯事故的原因,对制定有效的防范措施、防止贯通期间发生瓦斯超限事故具有重要意义。从理论上对高瓦斯矿井中巷道瓦斯综合治理提出自己的一些见解。摸清新元矿瓦斯涌出规律,并制定出一套科学、可靠的瓦斯防治技术,提高矿井瓦斯防治技术水平,确保矿井安全生产。
目录
1 矿区概述及井田地质特征 1
1.1 矿区概述 1
1.1.2地形地貌 2
1.1.3 河流及水体 2
1.1.4 气象及地震 2
1.2 井田地质特征 3
1.2.1 井田地质构造 4
1.2.3 其它有益矿产 9
1.3 煤层特征 11
1.3.1 煤层 11
1.3.2 煤质 11
1.3.4煤尘及煤的自燃性 14
1.3.5矿井地温 14
2井田境界及可采储量 14
2.1井田境界 14
2.1.1井田范围 14
2.1.2可采储量 15
2.1.3矿井设计生产能力及服务年限 16
2.2井田开拓 18
2.2.1井田开拓的基本问题 18
2.2.2井口及工业场地位置的选择 19
2.2.3井田开拓方案: 27
2.2.4矿井基本巷道 28
2.2.5大巷运输设备选择: 37
3采煤方法及采区巷道布置 42
3.1煤层的地质特征 42
3.1.1 煤层 42
3.1.2 煤质 43
3.1.3瓦斯 43
3.1.4煤尘及煤的自燃性 43
3.1.5邻近矿井及本井田瓦斯 43
3.2采煤巷道布置及生产系统 44
3.2.1巷道布置原则 44
3.2.2带区巷道特征与巷道布置 44
3.3采煤方法: 44
3.3.1采煤工艺方式: 44
3.3.2采区划分及开采顺序: 49
4矿井通风 52
4.1矿井通风系统选择 52
4.1.2通风系统选择 55
4.1.3通风方法 55
4.2采区通风 56
4.2.1采区通风总体要求 56
4.2.2采区通风的基本要求 56
4.2.3工作面上行风与下行风的确定 57
4.2.4工作面通风方式 57
4.2.5采区通风构筑物 59
4.2.6回采工作面风量计算 60
4.3掘进通风 61
4.3.1掘进通风方式的确定 62
4.3.2硐室配风量 66
4.3.3其它配风量 66
4.4矿井所需风量 66
4.4.1矿井风量分配 67
4.4.2自然风压 67
4.5矿井通风阻力 69
4.5.1矿井最大阻力路线 69
4.6矿井主要通风机选型 72
4.6.1通风机风压 73
4.6.2通风机风量 73
4.6.3矿井风机选型及技术分析 74
4.6.4电动机选型 74
4.6.5矿井主要通风机的安装、使用及维护 76
4.7矿井反风措施及装置 77
4.7.1矿井反风的目的和意义 77
4.7.2 反风方法及反风装置 77
4.7.3 区域性反风和局部反风 77
4.8概算矿井通风费用 78
4.9防止特殊灾害的安全措施 79
4.9.1预防瓦斯灾害的一般性措施 79
4.9.2预防煤尘爆炸的措施 80
4.9.3预防煤和瓦斯突出的措施 80
4.9.4预防井下火灾的措施 80
4.9.5预防井下水灾的措施 81
5矿井安全技术措施 81
5.1矿井安全技术概况 81
5.1.1煤尘及煤的自燃性 81
5.1.2矿井地温 81
5.1.3瓦斯 81
5.2矿井瓦斯 81
5.2.1矿井瓦斯地质条件 82
5.2.2矿井及采区瓦斯涌出情况 82
5.2.3矿井瓦斯等级鉴定 84
5.2.4瓦斯基础参数测定 84
5.2.5矿井瓦斯防治措施 90
5.2.6 安全 92
5.2.7抽放瓦斯的综合利用及评价 94
5.3 开采煤与瓦斯突出煤层防突措施 95
5.3.1矿井设计中防突措施 95
5.3.2防突措施 96
5.3.3煤与瓦斯突出预测仪器 97
5.3.4避灾硐室 97
高瓦斯矿井巷道贯通防突措施 98
1. 问题的提出 98
2. 巷道贯通时瓦斯事故隐患分析 99
2.1 矿井瓦斯概况 99
2.2 巷道贯通时瓦斯事故隐患的形成 99
2.3 原因分析 100
3. 解决的办法和措施 100
3.1选择巷道贯通地点应注意的几个问题 100
3.2 巷道贯通要采取的措施 101
4. E30101工作面与尾巷(回风斜巷)贯通安全技术措施 104
参考文献 108
翻译部分 110
英文原文 110
中文译文 121
温馨提示:
1、题目前面的备注【字母数字编号】为本站整理分类的编号,与课题内容无关,请选题时忽视;
2、若题目上备注三维,则表示文件里包含三维源文件,由于三维组成零件数量较多,为保证预览截图的简洁性,本站将三维文件夹进行了打包。三维及CAD预览截图,均为本站电脑打开软件进行截图的,保证能够打开,下载原件超高清,下载后解压即可;
3、本站所有资源如无特殊说明,都需要本地电脑安装Office2007。图纸软件为AutoCAD,PROE,UG,SolidWorks,CATIA等;
4、本站所有图文资料仅供用户学习参考,不作为任何商用或其他用途;
5、本站不保证下载资源的准确性、安全性和完整性, 不包修改,不支持退换,同时也不承担用户因使用这些下载资源对自己和他人造成任何形式的伤害或损失;
6、 下载文件中如有侵权或不适当内容,请与我们联系,我们立即纠正。